
ベージュ系の外壁とモダンなデザインが特徴的な2階建住宅
1 / 30

ベージュ系の外壁とモダンなデザインが特徴的な2階建住宅
情報更新日 2026/04/19
No.427日光市薄井沢中古戸建
情報更新日 2026/04/19
価格:
税込1,780万円
種別:中古戸建
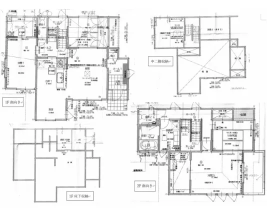
間取り:4SLDK4SLDK
価格:税込1,780万円
お気に入り
物件 No.427を電話でお問い合わせ(電話番号:0120-442-107、水曜・日曜日を除く9:00〜18:00)
すべての写真(30枚)
日光市薄井沢中古戸建の特徴
JR日光線下野大沢駅からバス63分の立地にある、平成20年築の木造2階建住宅です。
建物面積134.14㎡の4LDK+S(納戸)の間取りで、土地面積331.00㎡の山林地目の角地です。
非線引き区域で建ぺい率・容積率の定めがなく、自由度の高い建築が可能です。
南向きと東向きの二方向道路に接した角地で、接道幅員も南側5.0m、東側4.0mと十分な幅員を確保しています。
現在は空家ですが、即時引渡し可能で、自然豊かな日光の環境での暮らしを始められます。
物件概要
基本情報
| 所在地 | 〒321-2333 栃木県日光市薄井沢955-180 |
|---|---|
| 交通 | ♦︎JR日光線 「下野大沢」駅
徒歩63分 距離5.0km |
| 価格 | 税込 1,780万円 |
| 間取り | 4SLDK |
| 間取り内訳 | 和6・和7・洋8・洋11・S8 |
土地情報
| 土地面積 | 331㎡(100.13坪)(公募) |
|---|---|
| 都市計画 | 非線引区域 |
| 地勢 | 平坦 |
| 地目 | 山林 |
| 接道 | ♦︎南側 【種別】共有私道 【幅員】4m 【接面】5m ♦︎東側 【種別】共有私道 【幅員】6m 【接面】13m |
| 現況/引渡 | 上物有 |
| 土地権利 | 所有権 |
建物情報
| 建物構造 | 木造 |
|---|---|
| 建物面積 | 134.14㎡(40.58坪) |
| 築年月 | 2008年11月(築17年) |
| 戸数/階建 | 地上2階 |
| 現況 | 空室 |
設備・その他
| 駐車場 | 空有,2台 |
|---|---|
| 引渡し時期 | 即時 |
備考
♦︎立地・アクセス
栃木県日光市薄井沢955-180・日光線下野大沢駅よりバス63分・非線引区域・山林地目
♦︎敷地情報
土地面積331.00㎡(公簿)・角地・平坦地・南東角地・接道5.0m×4.0m
♦︎建物情報
木造2階建て・平成20年11月築・建物面積134.14㎡・4LDK+S(納戸)・現況空家
♦︎法規制・その他
建ぺい率・容積率定めなし・私道接道・駐車場有・即時引渡し可能
物件所在地
地図を読み込み中...
物件お問い合わせ
📞 お電話の際は 物件 No.427 をお伝えください




























