ホテルマグノリア箱根ヴィラ 3棟貸別荘の物件情報
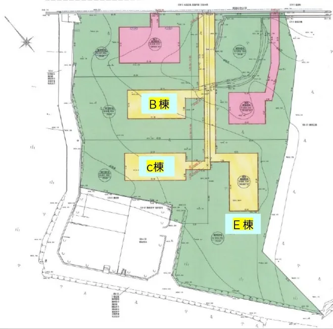
ホテルマグノリア箱根ヴィラB棟「和喜」, C棟「和楽」, E棟「和悦」広大な敷地、貸別荘旅館業運営中の収益物件、箱根都市計画特別用途地区第2種観光地区。
物件概要
基本情報
| 所在地 | 神奈川県足柄下郡箱根町仙石原571-4 |
|---|---|
| 交通 | ♦︎箱根登山鉄道鉄道線 「強羅」駅
距離7.1km
バス乗車時間20分 大原 |
| 価格 | 相談 |
| 間取り | 10SLDK (3棟戸建3LDK×2+4LDK) |
土地情報
| 土地面積 | 3358.6㎡(1015.98坪) |
|---|---|
| 都市計画 | 非線引区域 |
| 用途地域 | 未設定 |
| 地目 | 宅地 |
| 建ぺい率 | 20% |
| 容積率 | 40% |
| 接道 | ♦︎北東側 【種別】私道 【幅員】7m 【接面】7m ♦︎西側 【種別】共有私道 【幅員】4.5m |
| 現況/引渡 | 上物有 |
| 土地権利 | 所有権 |
建物情報
| 建物構造 | 木造2階建 |
|---|---|
| 建物面積 | 382.71㎡(115.77坪) |
| 築年月 | 2017年7月(築8年) |
設備・その他
| 駐車場 | 空有 |
|---|---|
| 引渡条件 | 室内清掃済引渡し |
備考
旅館業にて貸別荘運用中
物件所在地
地図を読み込み中...







