New!

1 / 9
New!

1 人 の方が
この物件をお気に入り。
すべての写真(9枚)
熱海竹の沢ビバリーハイツ分譲マンション2階の物件情報
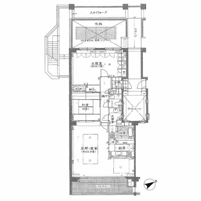
JR伊東線「来宮」駅から徒歩22分、専有面積117.31㎡(約35.49坪)+バルコニー15.16㎡の2LDK、平成5年1月築、鉄筋コンクリート造地下1階付6階建マンションの2階。温泉利用可能で大浴場完備、熱海の温泉リゾート暮らしを満喫できます。現況空室で即入居可能、駐車場有(7,000円~/月)です。
物件概要
基本情報
| 所在地 | 静岡県熱海市西熱海町1-15-1 |
|---|---|
| 交通 | ♦︎JR伊東線 「来宮」駅 |
| 価格 | 税込 2,200万円 |
| 管理費 | 42,300円 |
| 温泉使用料 | 3,000円 |
| 雑収入 | 500円 |
| 間取り | 2LDK +バルコニー15.16㎡ |
土地情報
| 土地面積 | 7780.64㎡(2353.64坪) |
|---|---|
| 都市計画 | 非線引区域 |
| 用途地域 | 未設定 |
| 建ぺい率 | 40% |
| 容積率 | 200% |
| 現況/引渡 | 上物有 |
| 土地権利 | 所有権 |
建物情報
| 建物構造 | 鉄筋コンクリート造陸屋根地下1階付6階建 |
|---|---|
| 建物面積 | 117.31㎡(35.49坪) |
| 築年月 | 1993年1月(築33年) |
設備・その他
| 駐車場 | 空有 |
|---|---|
| 引渡条件 | 室内清掃済引渡し |
備考
温泉利用可、大浴場あり
物件所在地
地図を読み込み中...







