
1 / 8

すべての写真(8枚)
富津市湊古屋付売地の物件情報
JR内房線「上総湊」駅から徒歩約9分の好立地。土地459.00㎡(138.85坪)で広大。 蒼い海と富士山を望む場所にあり、民泊許可取得済。全部屋から海・富士山が見える絶景物件で、海風を感じ、夕陽を眺め、ゆったりとした時間を過ごせます。駅まで徒歩約9分、海まで徒歩約10分、コンビニまで徒歩約7分という好立地です。 現況は民泊営業中です。
物件概要
基本情報
| 所在地 | 千葉県富津市湊354 |
|---|---|
| 交通 | ♦︎JR内房線 「上総湊」駅
距離0.6km |
| 価格 | 税込 3,990万円 |
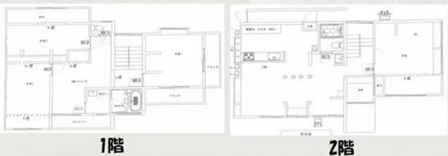
| 間取り | 4LDK |
土地情報
| 土地面積 | 459㎡(138.85坪) |
|---|---|
| 都市計画 | 都市計画区域外 |
| 地目 | 宅地 |
| 建ぺい率 | 60% |
| 容積率 | 200% |
| 現況/引渡 | 上物有 |
| 土地権利 | 所有権 |
建物情報
| 建物構造 | 木造2階建 |
|---|---|
| 建物面積 | 121.51㎡(36.76坪) |
| 部屋の向き | 北側 |
| 築年月 | 1981年11月(築44年) |
設備・その他
| 引渡条件 | 室内清掃済引渡し |
|---|
備考
6条区域内、崖条例
物件所在地
地図を読み込み中...






